Überbauung Obsthof

3116

Überbauung Obsthof
Ballwil

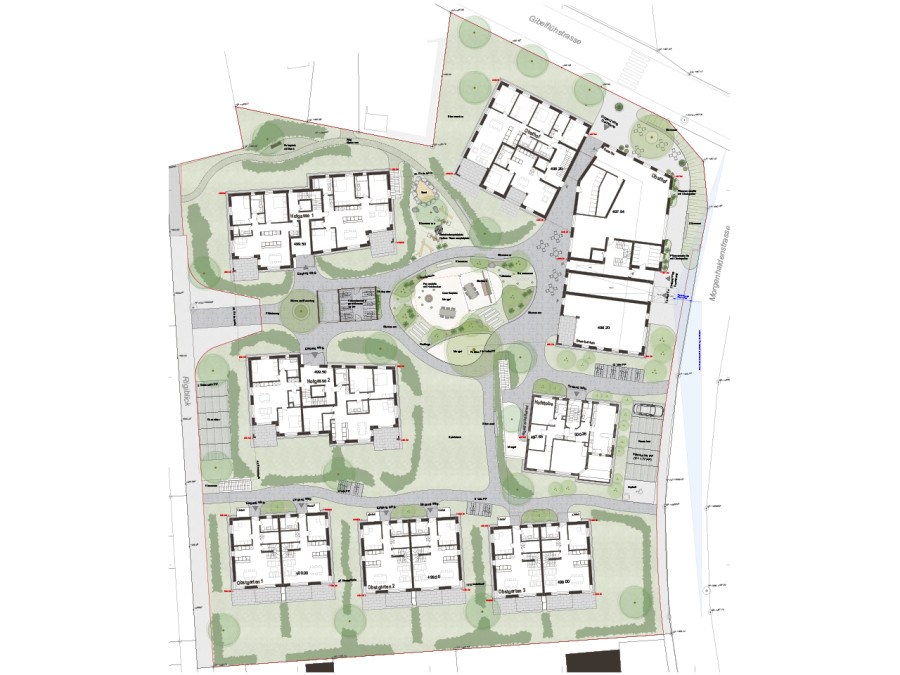
Ein im Einladungsverfahren entwickeltes Bebauungskonzept zeigt, wie innere Verdichtung am südwestlichen Dorfeingang von Ballwil funktionieren kann: drei neue Baukörper und ein integriertes Bestandswohnhaus bilden ein Ensemble um einen autofreien Hof, erschlossen über eine Einstellhalle; an der Strasseneinfahrt setzt eine mögliche Gastro-/Gewerbefläche die Adresse und stärkt den Übergang vom öffentlichen Raum in den halbprivaten Innenbereich.

Die Parzelle 36 liegt am Rand des Dorfes, grenzt an die Landwirtschaftszone und ist süd- und ostseitig von Einfamilienhäusern gefasst; nördlich gehört sie zur Dorfkernzone, südlich zur Wohnzone, wobei ein rund 30 Jahre altes Wohnhaus vorerst bestehen bleibt und so integriert ist, dass ein späterer Ersatzbau ohne Bruch möglich bleibt. Das Konzept orientiert sich an der gewachsenen Struktur und übersetzt typische, in der Nachbarschaft vorhandene Volumetrien in eine zeitgemässe Ordnung, während die Baukörper zu den Einfamilienhäusern hin in der Höhe zurücknehmen.

Zentrum der Anlage ist ein grosszügiger Innenhof, der dank unterirdischer Parkierung weitgehend autofrei bleibt; alle Gebäude sind hofseitig erschlossen, wodurch kurze Wege und eine Nachbarschaft auf Augenhöhe entstehen. Durchgänge von der Strasse führen über die Treppenhäuser in den Hof, der nicht überprogrammiert ist, sondern mit einfachen Mitteln – Sitzen, Bäumen, Feuerstellen – unterschiedliche Nutzungen erlaubt und so alltägliche Begegnungen fördert.

Städtebaulich entwickelt sich das Ensemble aus bekannten Mustern: Dreiergruppen und offene Ecklösungen aus dem Umfeld werden aufgenommen und präzise weitergeführt, sodass entlang der Strasse eine klare Kante entsteht, ohne den Massstab zu verlieren. An der Einfahrt zur Morgenhaldenstrasse ist eine kombinierte Fläche für Gastronomie oder Gewerbe vorgesehen; sie markiert die Adresse, stärkt den Dorfeingang und vermittelt zwischen öffentlichem Strassenraum und dem ruhigen Hof. Insgesamt wird damit nicht ein Solitär gesetzt, sondern ein Ort, der das Unterdorf funktional wie atmosphärisch ergänzt.